iroda
Szekszárd, Palánki út 41. kiadó iroda (A épület/em. 156,34 m2)
Adatok
- Cím: Szekszárd, Palánki út 41. kiadó iroda 156,34 m2
- Értékesítés típusa: Kiadó
- Ingatlan típusa: iroda
- Méret: 140 m2
- Közművek: Víz, Csatorna, Gáz, Áram
- Ár: 1 600 Ft/m2/hó
Kapcsolattartó
- Neve: Szűcs Judit
- Email címe: jszucs@dbi.hu
- Telefonszáma: 06-30-445-0148
Leírás
Szekszárd város északi határában lévő, M6-os autópályáról kiválóan megközelíthető telephelyen, utcafronti kétszintes irodaépületben irodák kiadók. Csendes környezet, családias hangulat!
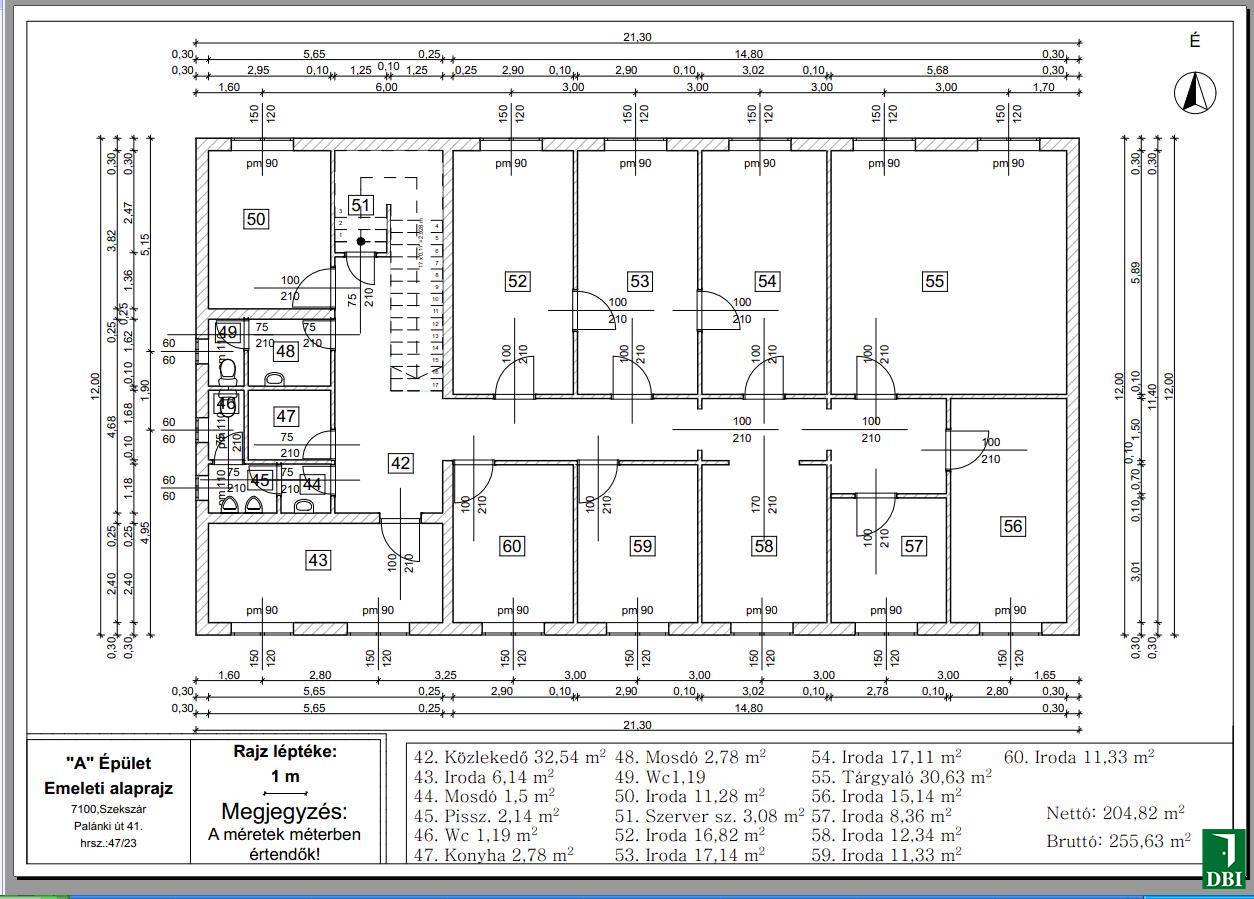
Igény esetén "A" épületünk emeletén akár 156,34 m2 nagyságú - légkondicionálással rendelkező - irodaterületet tudunk rendelkezésre bocsátani! Az emeleten konyha, szociális helyiségek biztosítva vannak. Legnagyobb irodahelyiségünk 30,63 m2, mely tárgyalóként kiválóan használható.
Bérleti díj ajánlatunk: 1600 Ft/m2/hó + Áfa
Üzemeltetési díj - iroda esetén: 200 Ft/m2/hó +Áfa
Telephelyünkön raktárakat, műhelyeket és szabad területet is kínálunk. Raktárak, műhelyek igény esetén fűthetőek.
A telephely közvilágítással rendelkezik, ügyfél forgalom bonyolítására kiválóan alkalmas, így kis- és nagykereskedések számára is ajánljuk. A telephelyen 24 órás biztonsági portaszolgálat működik.
Kérjük, időpont egyeztetésért, további információért keresse kapcsolattartónkat!








