raktár
Szekszárd, Palánki út 41. D.ép. kiadó raktár
Adatok
- Cím: Szekszárd, Palánki út 41. D.ép. kiadó raktár
- Értékesítés típusa: Kiadó
- Ingatlan típusa: raktár
- Méret: 430 m2
- Közművek: Víz, Csatorna, Gáz, Áram
- Ár: 880 Ft/m2/hó
Kapcsolattartó
- Neve: Koroknay Martin
- Email címe: mkoroknay@dbi.hu
- Telefonszáma: 06-30-445-0148
Leírás
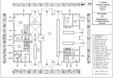
Szekszárdon - az M9-es és M6-os autópálya közelében - a Palánki út 41. szám alatti telephelyen lévő téglaépületen belül kiadó egy 430,91 m2 nagyságú, téglafallal leválasztott, külön bejáratú, nehézgépek szerelésére, tárolására alkalmas csarnokhelyiség. 13,84 m2-es iroda és 8,45 m2-es szociális helyiség a raktárral együtt kiadó. (Alaprajzon 1.,3.,4., 5., 7. sz. helyiségek)
A csarnok belmagassága 7 m. A legnagyobb kapu magassága 4,5 m, az ingatlan további 4 bejárattal rendelkezik, melyek egyenként 3,5 m magasak. A belmagasságnak és a kapuknak köszönhetően targoncázható, kistehergépjárművek (dobozos autók) is be tudnak állni.
2 aknával rendelkezik, ezért kamionok, nagyobb teherautók, nehézgépek szerelésére kiválóan alkalmas csarnok.
Az ingatlan 24 órás őrszolgálattal védett.
A víz- és áramfogyasztást mérőórával mérjük (fűtés sajnos nem biztosított), és a mindenkori aktuális egységáron továbbszámlázzuk a Bérlő felé.
Bérleti díj: 880 Ft/m2/hó+ÁFA
Üzemeltetési díj: 440 Ft/m2/hó+ÁFa
A telephelyen további raktárhelyiségek, irodahelyiségek, parkolók és szabad terület is kiadó.
További információért kérjük keresse munkatársunkat.






