iroda
Szekszárd, Palánki út 41. (A épület, 35 m2)
Adatok
- Cím: Szekszárd, Palánki út 41. kiadó iroda 35 m2
- Értékesítés típusa: Kiadó
- Ingatlan típusa: iroda
- Méret: 35 m2
- Közművek: Víz, Csatorna, Gáz, Áram
- Ár: 1 600 Ft/m2/hó
Kapcsolattartó
- Neve: Szűcs Judit
- Email címe: jszucs@dbi.hu
- Telefonszáma: 06-30-445-0148
Leírás
Kiadásra kínáljuk Szekszárd, Palánki u. 41. alatti telephelyünkön, csendes, nyugodt környezetben, kellemes irodáinkat.
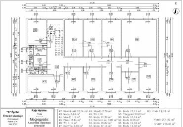
Az "A" épület emeletén 58-59-60 számú helyiségek együttesen 35 m2 nagyságúak.
Az irodák külön bejáratúak, ablakaik nyithatóak, légkondicionálóval ellátottak. Igény esetén további bővülésre van lehetőség 246 m2-ig is akár.
Az ingatlan előtt sok parkolóhely biztosított. Telephelyen belül parkolóhely bérelhető.
Telephelyünkön továbbá műhelyek, raktárak, szabad területek bérelhetők.
Amennyiben hirdetésünk felkeltette érdeklődését forduljon hozzánk bizalommal!
Bérleti díj: 1600 Ft/m2/hó+Áfa
Üzemeltetési díj: 200 Ft/m2/hó+Áfa (rezsivel)









