iroda
Szekszárd, Palánki u. kiadó iroda 40. sz.
Adatok
- Cím: Szekszárd, Szekszárd, Palánki u. 41
- Értékesítés típusa: Kiadó
- Ingatlan típusa: iroda
- Méret: 12 m2
- Közművek: Víz, Csatorna, Gáz, Áram
- Ár: 1 600 Ft/m2/hó
Kapcsolattartó
- Neve: Szűcs Judit
- Email címe: jszucs@dbi.hu
- Telefonszáma: 06-30-445-0148
Leírás
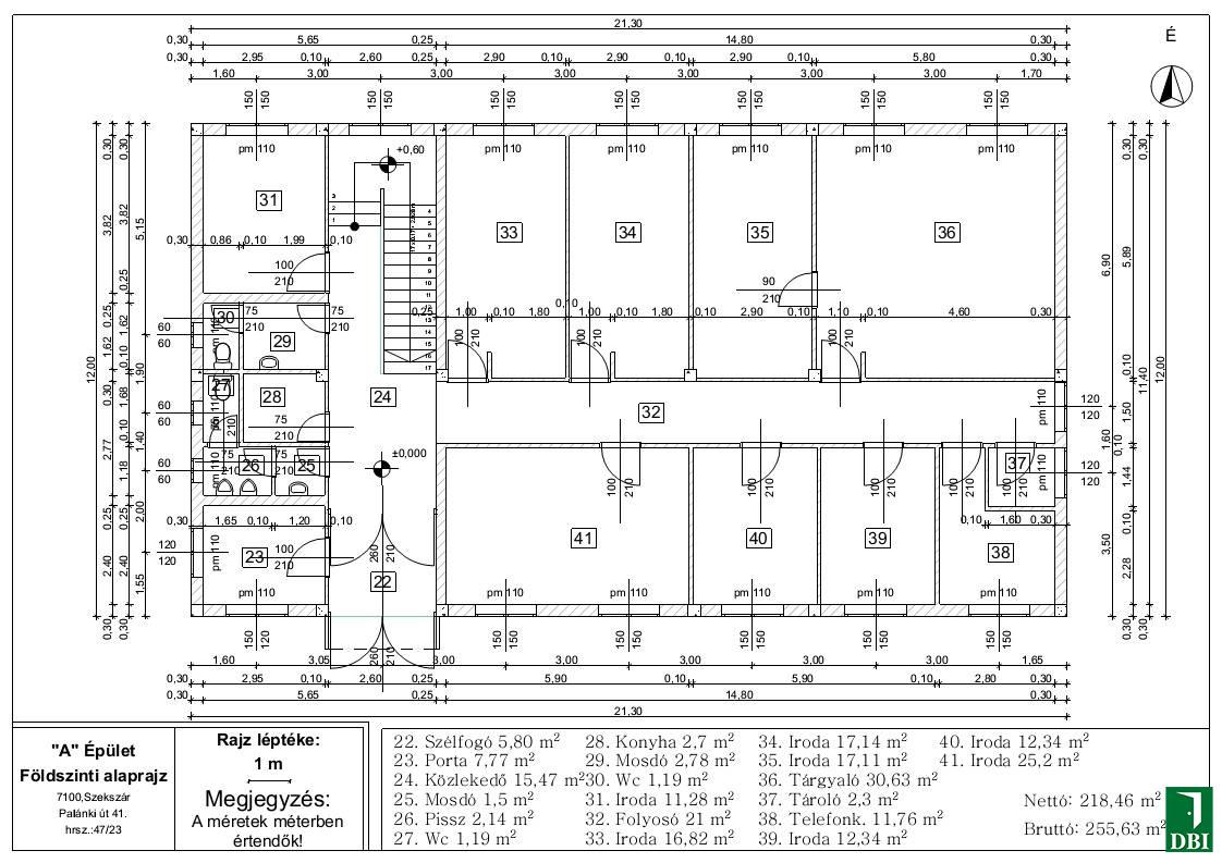
Kiadásra kínáljuk kiadó irodáinkat Szekszárd, Palánki u-i telephelyünkön. Az A épület földszintjén található 40. számú helyiségünk 12,34 m2, melynek bérleti díja 1600 Ft/m2/hó+Áfa. A bérleti díj tartalmazza a normál használatból adódó rezsi költségeket is. Irodáink klimatizáltak és telephelyünkön 0-24 órás porta szoláglat működik.
Az ingatlan jól megközelíthető az M6-os autópályáról. Jelenleg több szabad iroda is elérhető az A épületünkben 6,14 m2-246,23 m2-ig. Továbbá raktár, műhely és szabad terület bérlésére is van lehetőség.
Amennyiben hirdetésünk felkeltette érdeklődését forduljon hozzánk bizalommal.



