iroda
Szekszárd kiadó iroda (A/fszt. 33)
Adatok
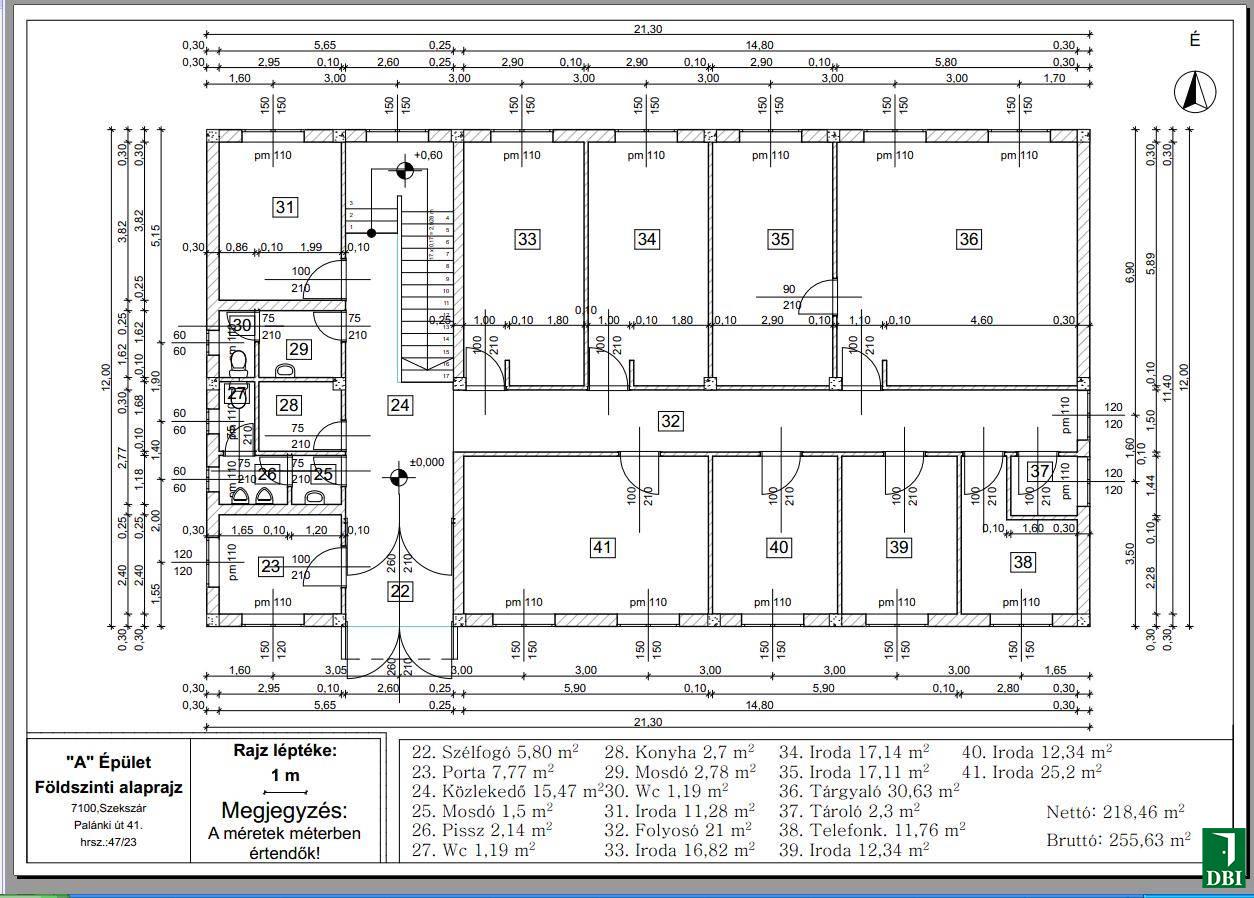
- Cím: Szekszárd, Palánki út 41. A ép. fszt. 33
- Értékesítés típusa: Kiadó
- Ingatlan típusa: iroda
- Méret: 16 m2
- Közművek: Víz, Csatorna, Gáz, Áram
- Ár: 1 600 Ft/m2/hó
Kapcsolattartó
- Neve: Szűcs Judit
- Email címe: jszucs@dbi.hu
- Telefonszáma: 06-30-445-0148
Leírás
A város északi határában lévő, kiváló közlekedéssel rendelkező telephelyen, utcafronti kétszintes irodaépületben irodák kiadók. Igény esetén A épületünkben, 246,23 m2 irodaterületet tudunk rendelkezésre bocsátani, de ezek mellett raktárakat, műhelyeket és szabad területet is kínálunk. A épület, földszintjén található 33. iroda helyiségünket önmagába is kínáljuk kiadásra, mely 16,82 nm. A telephelyen 24 órás biztonsági portaszolgálat működik, mely a rezsidíjakkal együtt benne értendő a bérleti díjban. Kérjük, időpont egyeztetésért, további információért keresse kapcsolattartónkat.



