iroda

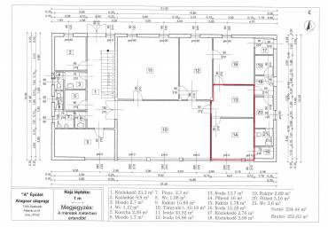
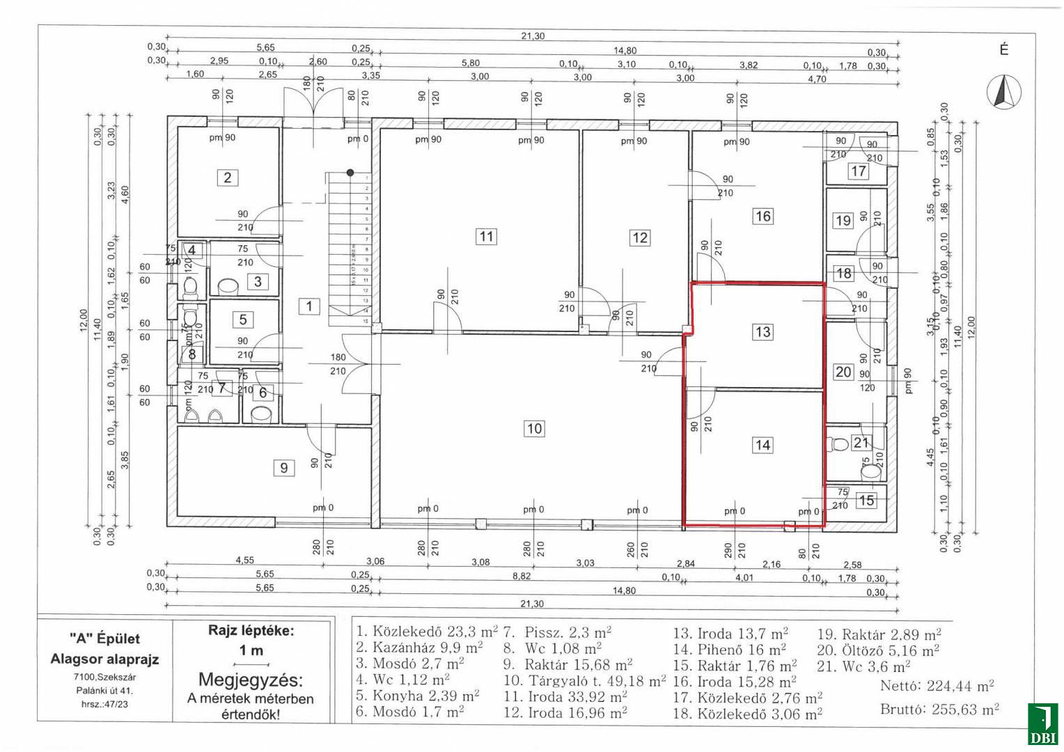
Szekszárd kiadó iroda A ép. 13-14 sz.

Adatok

Kapcsolattartó

Leírás

Kiadásra kínáljuk irodánkat Szekszárd Palánki utca 41 alatti ingatlanunkban. Telephelyünkön az A épület alagsorában található az iroda, de ezen felül további helyiségeket is tudunk biztosítani igény esetén. Telephelyünkön továbbá műhelyek és szabad területek is bérelhetők. Értékei biztonságára 0-24 órás biztonsági szolgálat gondoskodik.
Az ingatlan bérleti díja 1600 Ft/m2/hó+Áfa, amely tartalmazza a normál használatból adódó közüzemi díjakat. Ennek értelmében a hirdetésben szereplő iroda bérleti díja 28.416,-Ft/hó+Áfa.
Amennyiben hirdetésünk felkeltette érdeklődését forduljon hozzánk bizalommal!