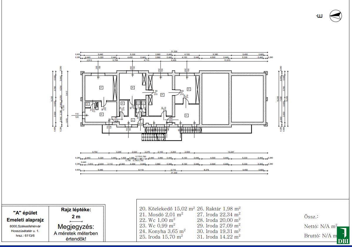
iroda
Székesfehérvár, Hosszúsétatér 1. kiadó iroda
Adatok
- Cím: Székesfehérvár, Hosszúsétatér 1. kiadó iroda
- Értékesítés típusa: Kiadó
- Ingatlan típusa: iroda
- Méret: 80 m2
- Közművek: Víz, Csatorna, Gáz, Áram
- Ár: 1 800 Ft/m2/hó
Kapcsolattartó
- Neve: Koroknay Martin
- Email címe: mkoroknay@dbi.hu
- Telefonszáma: 06-30-445-0148
Leírás
Székesfehévár belvárosában, mégis csendes környezetben kiadó irodák.
A Hosszúsétatér 1. szám alatti irodaépület emeletén iroda helyiségek kiadók.
A betonúton megközelíthető és körülkerített telephelyünkön szabad terület is bérelhető.
Bérleti díj: 1 800 Ft/m2/hó+ÁFA
Üzemeltetési díj: 210 Ft/m2/hó+Áfa
További információért kérjük keresse munkatársunkat.











