iroda
Kiadó iroda Kaposváron
Adatok
- Cím: Kaposvár, Raktár utca 13
- Értékesítés típusa: Kiadó
- Ingatlan típusa: iroda
- Minimális bérelhető terület: 12 m2
- Méret: 173 m2
- Közművek: Víz, Csatorna, Gáz, Áram
- Ár: 2 600 Ft/m2/hó
Kapcsolattartó
- Neve: Koroknay Martin
- Email címe: mkoroknay@dbi.hu
- Telefonszáma: +36-30-445-0148
Leírás
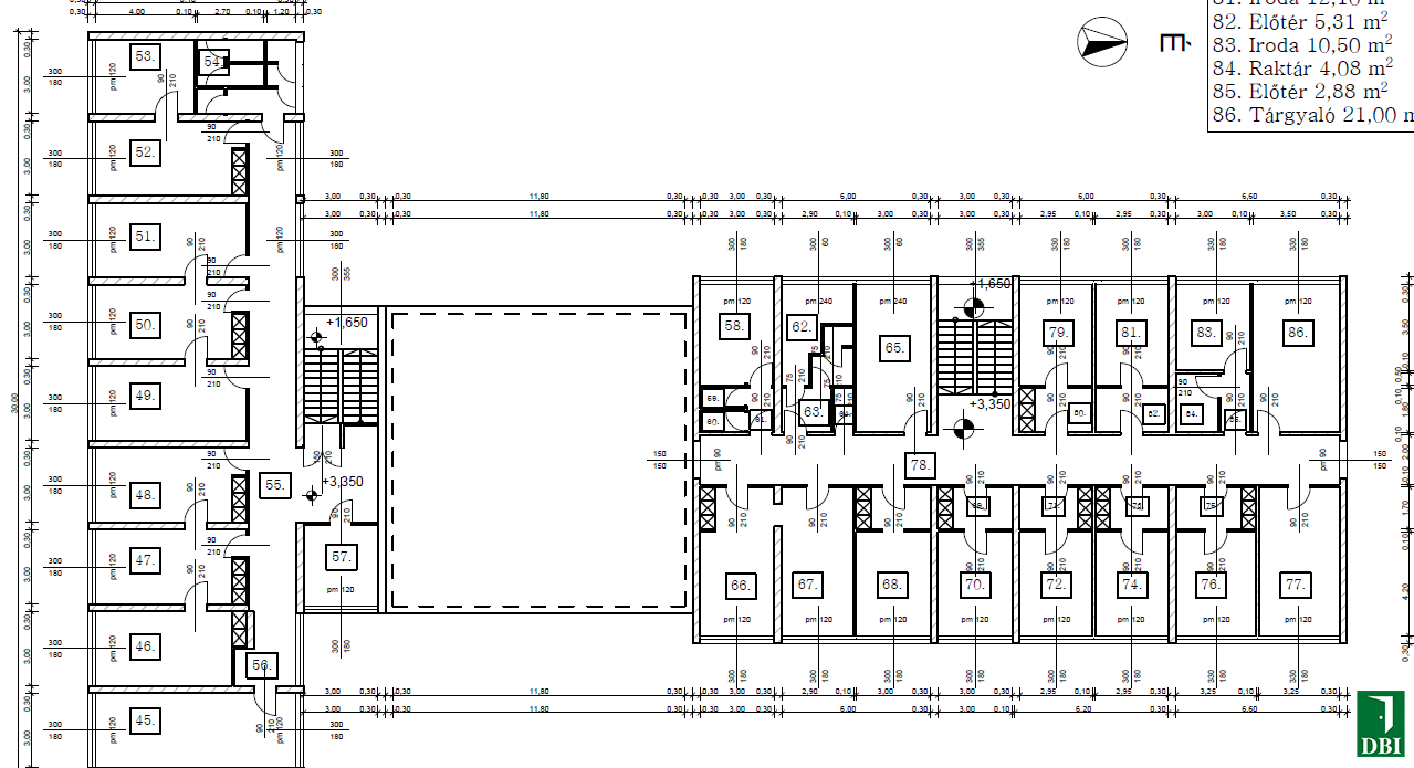
Kiadásra kínálunk Kaposvár egyik csendes telephelyén a Raktár utcában egy B kategóriás irodaház első emeletén egy 173 m2-es irodát. Az iroda egyben, de akár kisebb helyiségekre bontva is bérelhetőek.
Jelenleg az irodahelyiség 9 szeparálható, világos irodából, egy tárgyalóból, egy konyhából, illetve egy wc blokkból áll.
Az autóval járó itt dolgozók parkolása a 24 órás őr-, és portaszolgálattal, kamerarendszerrel védett telephelyen belül megoldható.
Műszaki leírás:
Nyílászáró: műanyag
Fűtés: gáz
Az irodák laminált parkettával, míg a vizes helyiségek járólappal burkoltak.
Az ingatlan jelenlegi energetikai besorolása: EE
Az iroda bérleti díja 2600 Ft/m2+ Áfa, üzemeltetési díja 975 Ft/m2/hó+ Áfa.
A rezsiköltség külön mérőóra alapján fizetendő.

