iroda
Budapest, Gogol u. kiadó iroda (110,112)
Adatok
- Cím: Budapest, XIII. Gogol utca 13.
- Értékesítés típusa: Kiadó
- Ingatlan típusa: iroda
- Méret: 63 m2
- Közművek: Víz, Csatorna, Áram
- Ár: 2 700 Ft/m2/hó
Kapcsolattartó
- Neve: Szűcs Judit
- Email címe: jszucs@dbi.hu
- Telefonszáma: 06-30-445-0148
Leírás
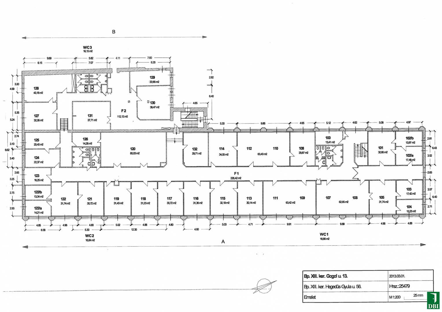
Gogol 13 Irodaház kiadó emeleti iroda
Kiadásra kínáljuk a Budapest, 13. kerület Gogol utca 13 szám alatti, B kategóriás irodaházunk emeletén található egylégterű, klimatizált, világos irodánkat. Korábban két szobából állt, most egy, nagy irodaként funkciónál, összesen 63,4 m2-es. Az emelet első harmadában található, közel a közös használatú konyhához, és mosdó helyiségekhez. Az emeleten kizárólag a bérlőink, és saját magunk részére hasznosított, 80 m2-es nagy tárgyaló is alkalmi jelleggel bérelhető. (Fél ill. egy napos időszakokra.)
Az irodaházban 24 órás őr- és portszolgálat működik. Az irodák bérlésekor nem számítunk fel közös területi szorzót!
Az irodaház szolgáltatásai, a közművek költségeit tartalmazza az üzemeltetési költség. (Kivétel az iroda takarítása, telefon és internet szolgáltatást. A házban UPC és Telekom szolgáltatásait lehet elérni.)
Bérleti díj: 2700 Ft/m2/hó+ÁFA, összesen 171.180 Ft/hó+ÁFA,
Üzemeltetési ktg.: 1000 Ft/m2/hó+ÁFA, összesen 63400 Ft/hó+ÁFA





